Реализованные объекты по холодоснабжению
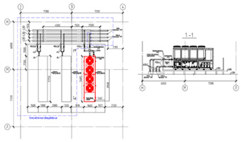
Главное бассейновое управление по рыболовству и сохранению водных биологических ресурсов
Оборудование:
- установка охлаждения жидкости TGM-3042E (2 шт.)
- холодопроизводительность одной установки — 280,2 кВт
- расход жидкости одной установки — 102,68 м3/ч
- тип компрессоров и их количество – спиральные, 4 шт.
- исполнение установок – с воздушным охлаждением конденсатора
Выполнено:
- обследование объекта;
- подготовка технических/технологических решений и согласование их с Заказчиком;
- подготовка технической документации по дооснащению объекта системой охлаждения воды и согласование ее с Заказчиком;
- подготовка плана модернизации обвязки гидроконтура оборудования и согласование его с Заказчиком;
- модернизация навесной конструкции для отвода потока теплого воздуха от конденсаторных блоков
- дооснащение инженерной инфраструктуры:
подключение системы электропитания чиллера; подключение дублирующей критической арматуры вторичного (водяного) контура; - подключение системы мониторинга работы вновь установленного оборудования;
- проверка всех компонентов в работе;
- подготовка исполнительной документации;
- обучение персонала работе с оборудованием.
Центр информационных технологий Новосибирской области (рЦОД Новосибирск)
Оборудование:
- установка охлаждения жидкости TGM-3042E (2 шт.)
- холодопроизводительность одной установки — 280,2 кВт
- расход жидкости одной установки — 102,68 м3/ч
- тип компрессоров и их количество – спиральные, 4 шт.
- исполнение установок – с воздушным охлаждением конденсатора
Выполнено:
- обследование объекта и предварительное согласование графика выполнения работ;
- подготовка технических/технологических решений и согласование их с Заказчиком;
- разработка и проектирование конструктива установки под требуемые габариты проектного места расположения оборудования;
- подготовка документации по дооснащению системы кондиционирования и согласование ее с Заказчиком;
- дооснащение инженерной инфраструктуры:
системы электропитания чиллера, контура жидкостного охлаждения, дублирующей критической арматуры вторичного (водяного) контура с проведением последующих мероприятий по проверке вновь смонтированного оборудования; - монтаж системы мониторинга работы вновь установленного оборудования;
- подготовка ППР и организация монтажа установки с использованием 200-т тонного крана
- установка нового чиллера с вводом его в промышленную эксплуатацию;
- подготовка исполнительной документации;
- обучение персонала работе с дооснащенным оборудованием.
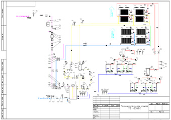
Министерство Юстиции Российской Федерации
Оборудование:
- установка охлаждения жидкости TGSW-07622AHE (2 шт.)
- холодопроизводительность каждой установки — 905 кВт
- расход жидкости каждой установки (испаритель/конденсатор) – 155/188 м3/ч
- тип компрессоров и их количество – винтовые, 4 шт.
- исполнение – с водяным конденсатором на базе винтовых компрессоров
Выполнено:
- выполнение работ по демонтажу вышедших из строя 3-х нерабочих холодильных машин с перемещением в указанное Заказчиком место на территории Минюста России, с предоставлением отчетной документации;
- демонтаж отводных трубопроводов с заваркой мест врезки в основные трубопроводы (коллекторы).
- поставка нового холодильного оборудования, его установка на виброопорах в местах, предусмотренных проектной документации.
- выполнение работ по монтажу и подключению трубопроводов холодильных машин, а также сборка запорно-фланцевой и регулирующей арматуры на узлах подключения холодильных машин с установкой магнитно-сетчатых фильтров.
- приварка фланцевых соединений к трубопроводам подключения холодильных машин.
- выполнение работ по контрольной опрессовке сварочных швов, фланцевых соединений и установленной запорно-регулирующей арматуры.
- выполнение работ по диспетчеризации поставленных холодильных машин, пусконаладочные работы и ввод в промышленную эксплуатацию.
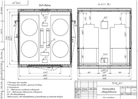
Государственный научный центр Российской Федерации Троицкий институт инновационных и термоядерных исследований (АО «ГНЦ РФ ТРИНИТИ»)
Оборудование:
- установка охлаждения жидкости моноблочного типа TGM-0521E (2 шт.)
- холодопроизводительность каждой установки — 68 кВт
- расход жидкости каждой установки – 13,9 м3/ч
- тип компрессоров и их количество – спиральные, 4 шт.
- исполнение – с воздушным охлаждением конденсатора
Выполнено:
- проектирование установки и разработка конструктива с возможностью интеграции оборудования в блок-контейнер Заказчика для охлаждения источника лазерного излучения YLS-30000 при номинальном режиме работы;
- разработка чертежей и 3D модели оборудования;
- совместно с Заказчиком проработка и симуляция оптимального теплообмена оборудования внутри блок-контейнера установки;
- поставка нового холодильного оборудования, его установка на проектное место;
- Разработка ПО для возможности фиксировать дополнительные параметры установки, а так же для удаленного подключения к установки и возможности проводного подключения к лазеру для отображения в интерфейсе программы LaserNet;
- совместный с Заказчиком тест, корректировка под требуемые параметры и ввод оборудования в эксплуатацию;
- удаленная поддержка Заказчика по перенастройке оборудования.























